KREPTA 3 Корпус пластиковый ЩРН-П-36 IP41 черная дверь черный IEK
Бесплатная доставка по Екатеринбургу и до ТК при заказе от 3000 ₽.
Доставка по России
- Производитель: IEK ( ИЭК )
- Код товара: MKP13-N-36-41-K02
- Артикул: MKP13-N-36-41-K02
- Ом код: 258-886
Преимущества
- Ударопрочный, самозатухающий АБС-пластик.
- Вертикальное расположение корпуса и крышки.
- Простой и быстрый монтаж - отверстия для крепления корпуса.
- Удобный монтаж - предварительно выштампованные вводы для введения кабелей со всех сторон.
- Наличие специальной планки для крепления нулевой шины.
- Маркировочная лента входит в комплект изделия.
- Универсальные винты.
- Надежная DIN-рейка.
Особенности конструкции

Нулевая шина крепится на специальную панель. Она легко снимается и устанавливается на противоположную сторону. Обеспечивает высокую безопасность: токоведущие части закрыты для предотвращения преднамеренного прикосновения. Самозатухает при температуре 950°С.

Универсальные анодированные винты защищены от коррозии и походят к любому типу отвертки.

Простое введение кабелей, проводов через выштампованные вводы для проводников на задней и боковых стенках корпуса.

Полная комплектация корпусов обеспечивает простой и быстрый монтаж.

Не нужно писать на самих автоматических выключателях - специальная маркировочная лента входит в серийную поставку.

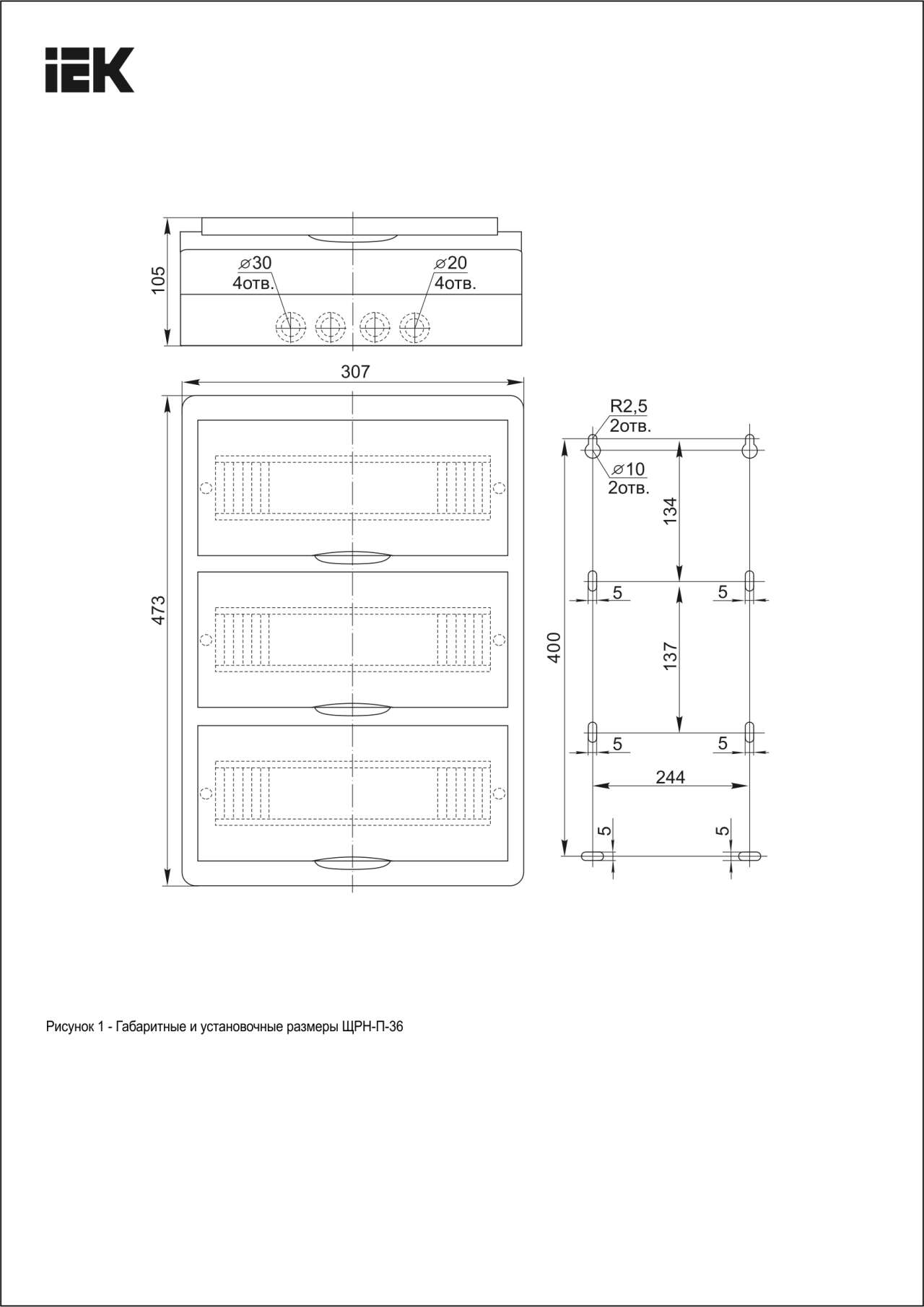
Точное выравнивание и надежный монтаж корпуса на стене обеспечивают точки крепления с указанием размеров между ними.

Вертикальное расположение корпуса обеспечивает удобство монтажа и дополнительную циркуляцию воздуха.
Документация
Паспорта и РЭ
Информационные материалы
Заказать товар:
Через форму заказа на сайте
По телефону:
Отправить на заявку на электронную почту:
Мы осуществляем отправку по РФ - СДЭК, Деловые линии, КИТ, Собственным транспортом (2 и 5 тн)
Бесплатная доставка по Екатеринбургу при сумме от 3000 руб - карта в разделе оплата и доставка
