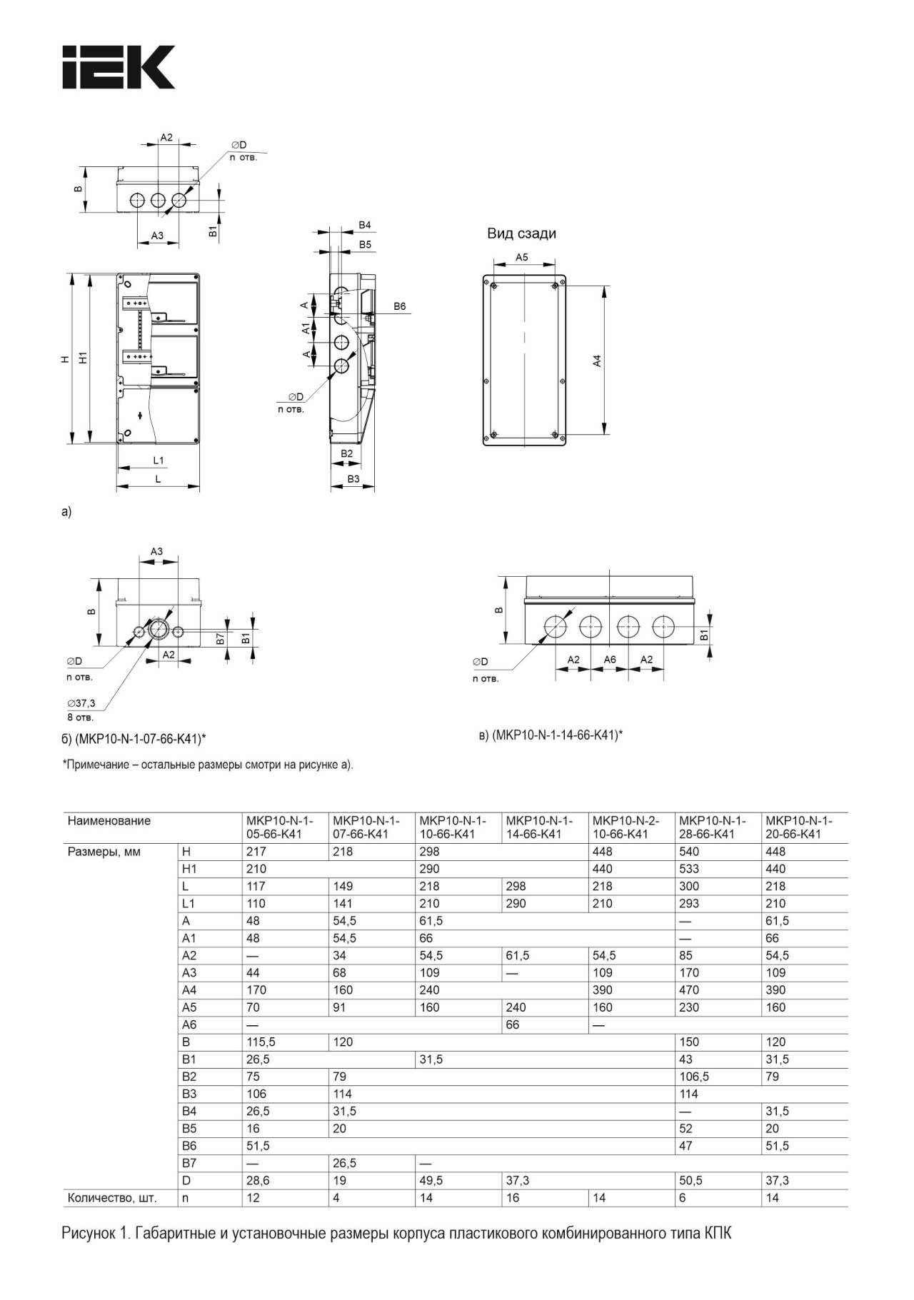
Корпус пластиковый комбинированный КПК 210х440х114 10 модулей IP66 IEK
Бесплатная доставка по Екатеринбургу и до ТК при заказе от 3000 ₽.
Доставка по России
- Производитель: IEK ( ИЭК )
- Код товара: MKP10-N-2-10-66-K41
- Артикул: MKP10-N-2-10-66-K41
- Ом код: 258-399
Документация
Дополнительные изображения
Заказать товар:
Через форму заказа на сайте
По телефону:
Отправить на заявку на электронную почту:
Мы осуществляем отправку по РФ - СДЭК, Деловые линии, КИТ, Собственным транспортом (2 и 5 тн)
Бесплатная доставка по Екатеринбургу при сумме от 3000 руб - карта в разделе оплата и доставка
